Project Year : 2025
Project Area : 465 m2
Project Location : Metropol Istanbul Shopping Mall , Türkiye
The restaurant integrates a gastronomic concept, based on olive oils sourced from the Kalamata region of Greece, into its spatial design. The interior features wood paneling and rich green tones, creating a natural atmosphere. A black and white geometrically patterned marble floor lends the space a classic and timeless character. The seating areas feature rounded banquettes, rattan-decorated chairs, and marble-topped tables, creating a modern interpretation that evokes the Mediterranean spirit. The gallery space, the design's primary focal point, provides visual dominance to the olive oil tasting area. Surrounded by glass, bottles of olive oil selected from various regions of the world are displayed on shelving systems, supported by wooden cylindrical tasting units, which serve as an experiential center. Organically shaped pendant lights and gold-toned accents enhance the emphasis on the bottles and the overall atmosphere of the space. The venue combines weekly tavern nights, which require reservations, with live music and a special tasting menu, transforming gastronomy and spatial design into a holistic experience.

Restaurant Color Palette

Restaurant Table Setting

Restaurant Sketch

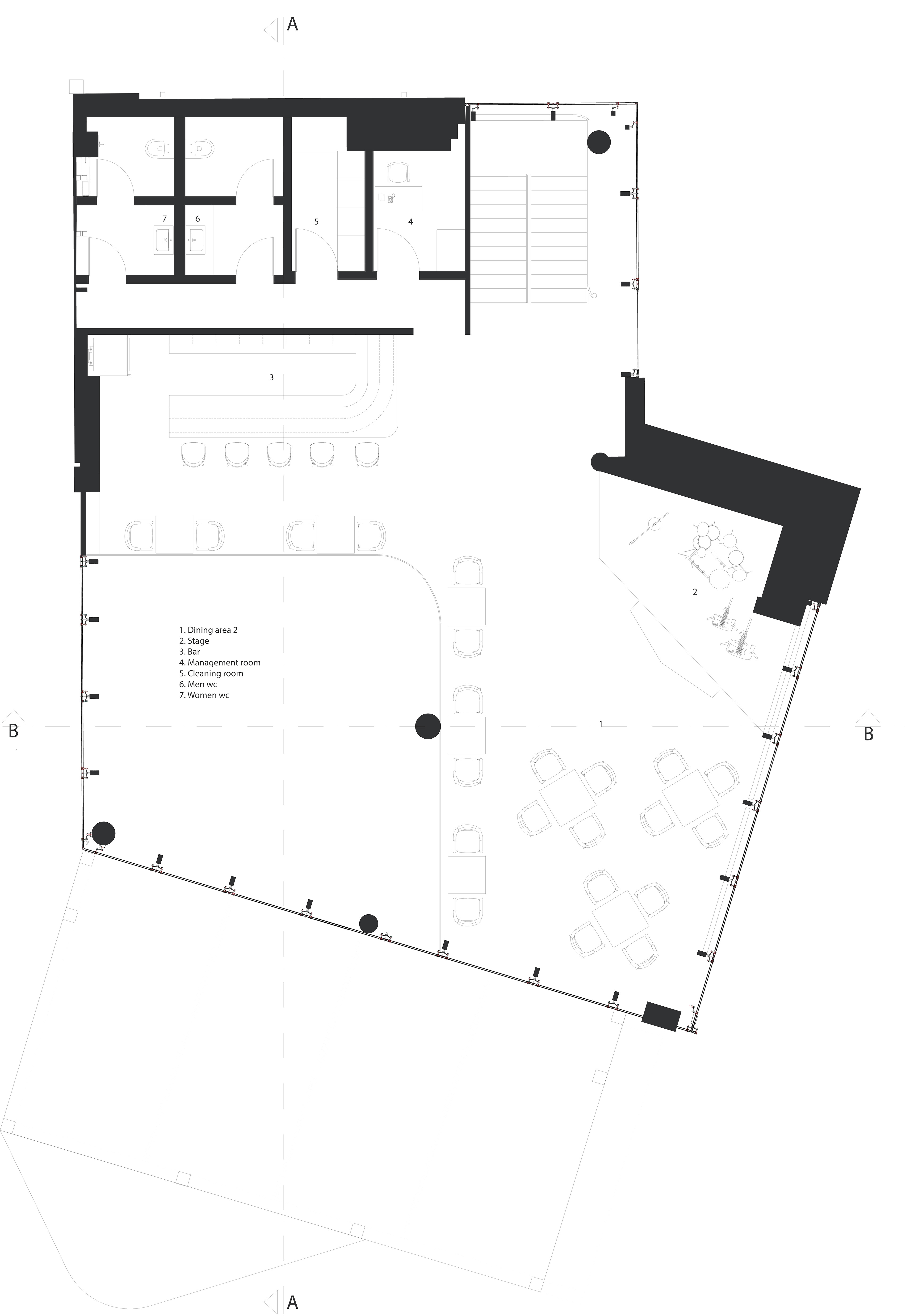
Ground Floor Plan

Mezzanine Floor Plan

A-A Section

B-B Section

Back to Top