Project Year : 2021
Province : Muğla , Türkiye
 District : Datça
 Neighborhood : Reşadiye
 Block : 40
 Plot : 6
 Qualification : Two storey house
 Layout : 26 30 F B

Facade Photos

I drew it with orthophoto. I used point cloud data.

Front View

Left Side View

Plan Photos

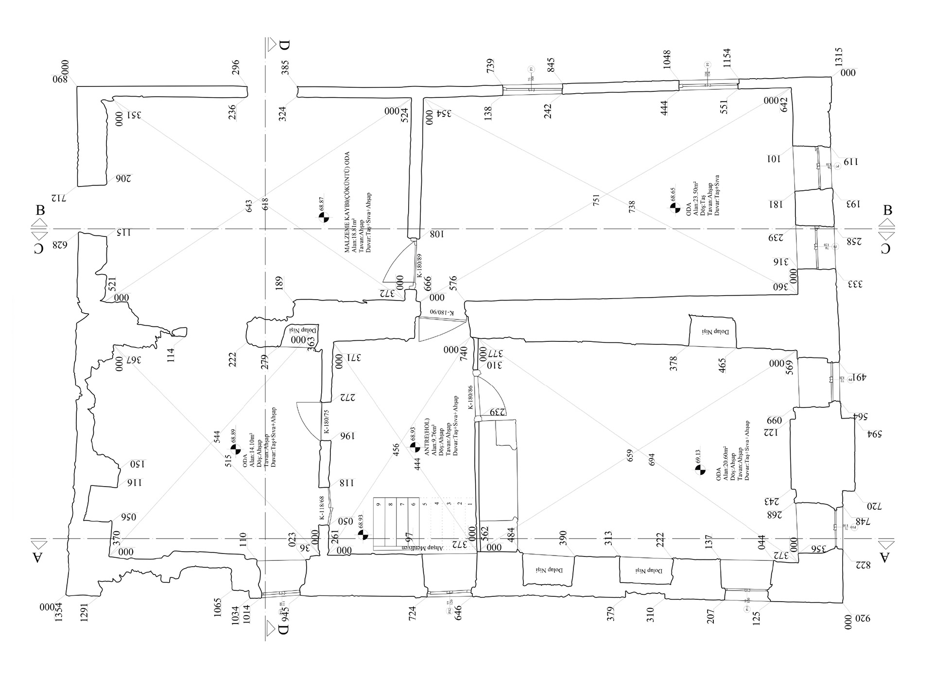
First Floor Plan

Ground Floor Plan

Interior Section Photos

A-A Section

B-B Section

Interior Section Photos

C-C Section

D-D Section

Back to Top