Project Year : 2025
Project Area : 62,41 m2
Project Location : Dubai
This residence hotel room design is inspired by Dubai's desert and ocean color palette, crafted with a "quiet luxury" approach. The serenity of beige and earth tones and the depth of navy blue marble details create an elegant contrast, while expansive glass surfaces bring in the natural landscape, integrating the room's atmosphere with its surroundings. Minimalist furniture, soft-textured fabrics, and sculptural lighting balance comfort and aesthetics. The bathroom adopts a simple design language dominated by blue tones, with matte-finish ceramic tiles and a marble countertop with a natural vein pattern creating a strong material contrast. Organically shaped mirrors and modern lighting elevate the space from functionality to a tranquil spa experience. The panoramic bathtub area brings the desert and sea views into the interior, transforming the stay into a unique sensory experience.

Hotel Room Sketch

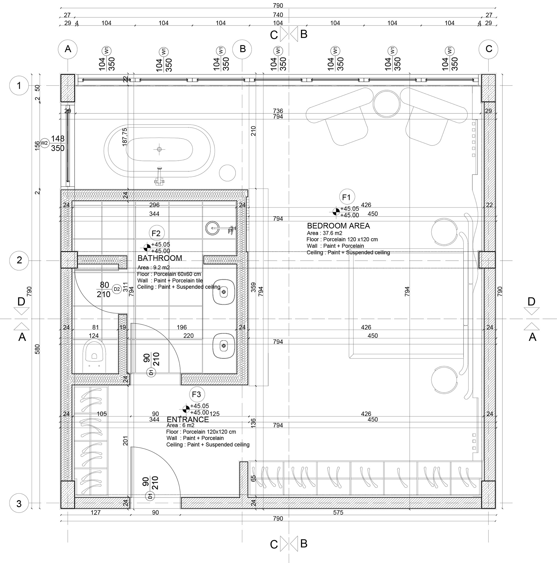
 Hotel Room Plan
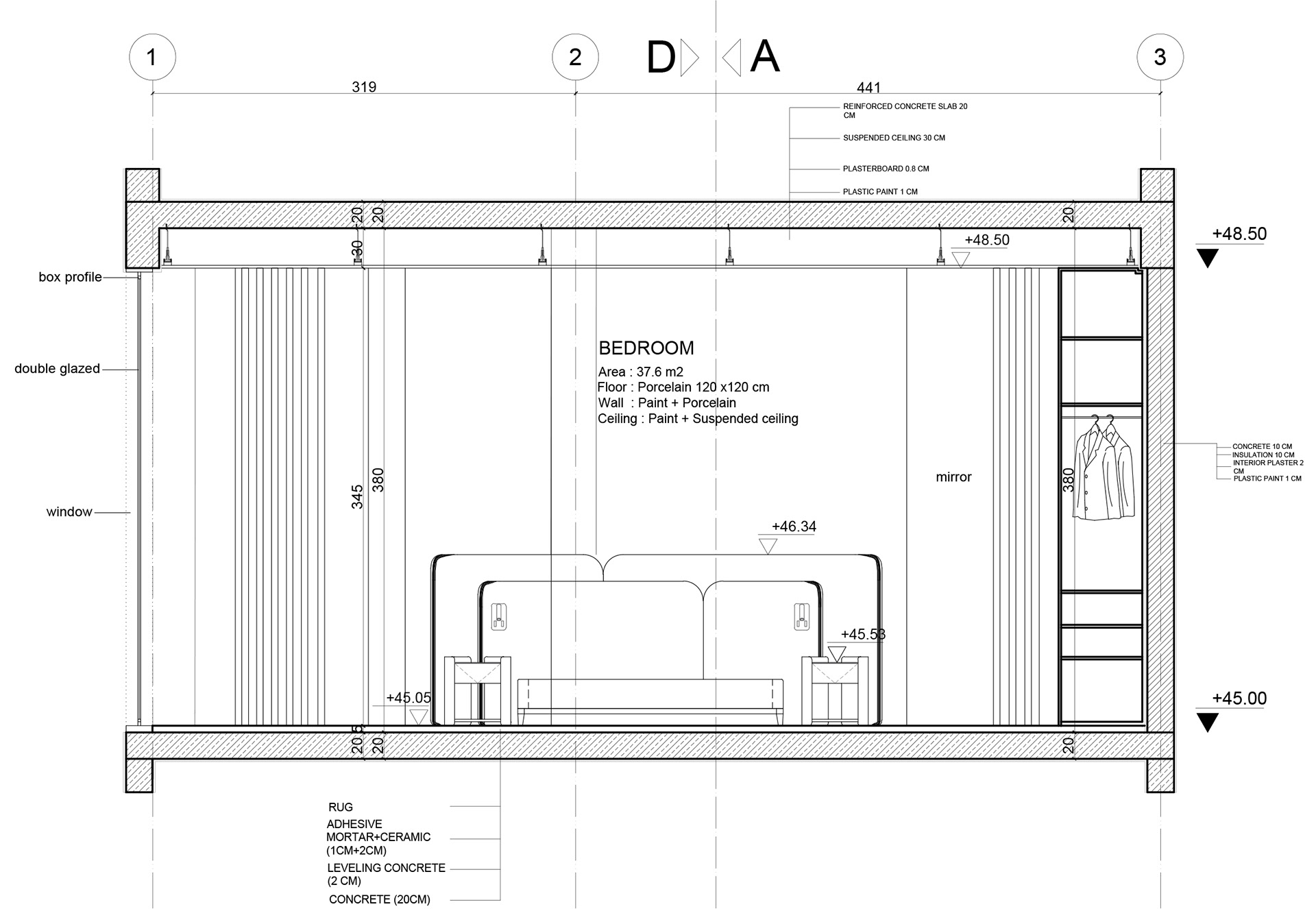
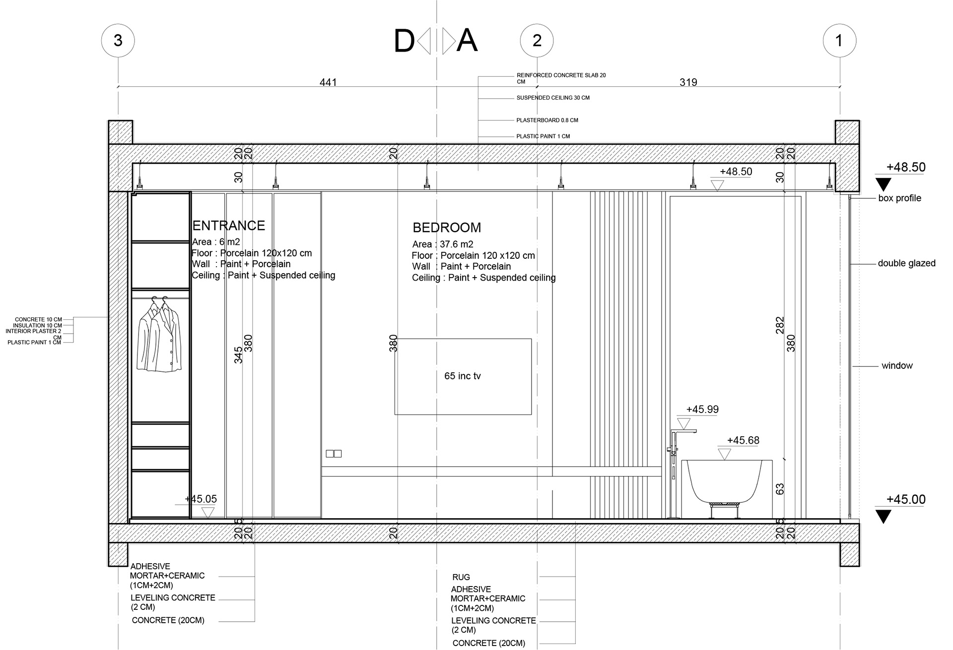
A-A Section
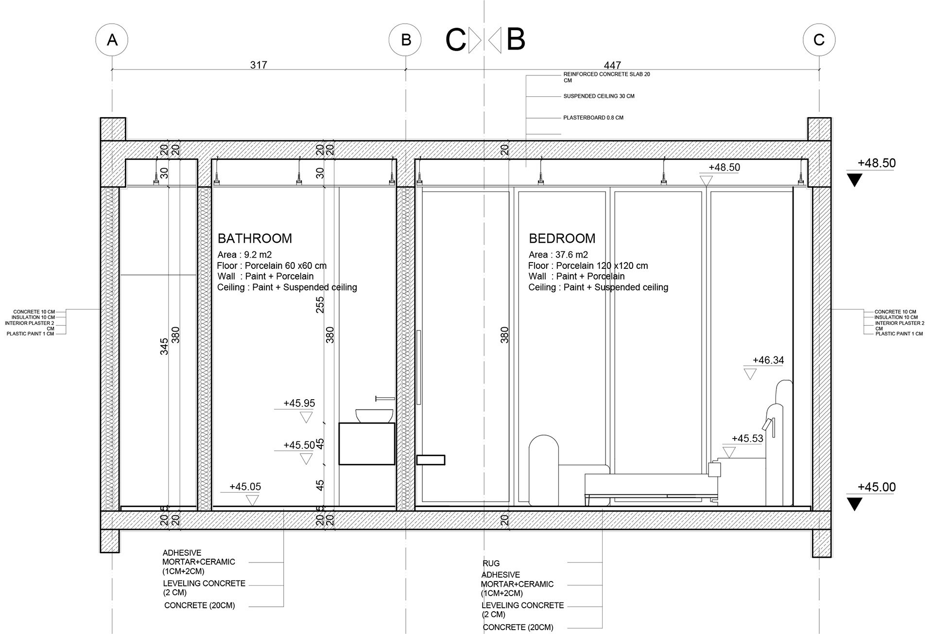
B-B Section

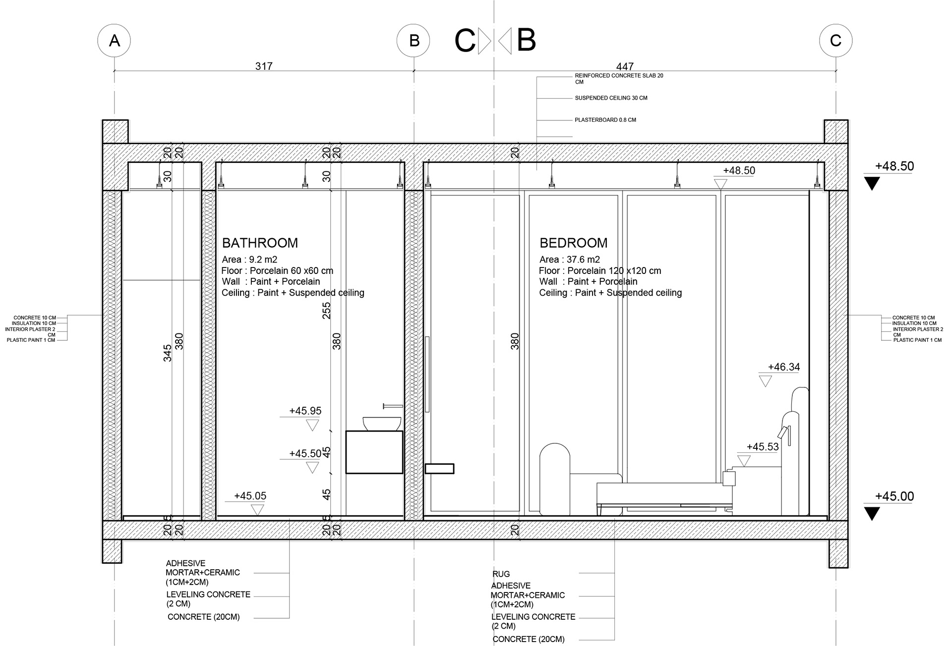
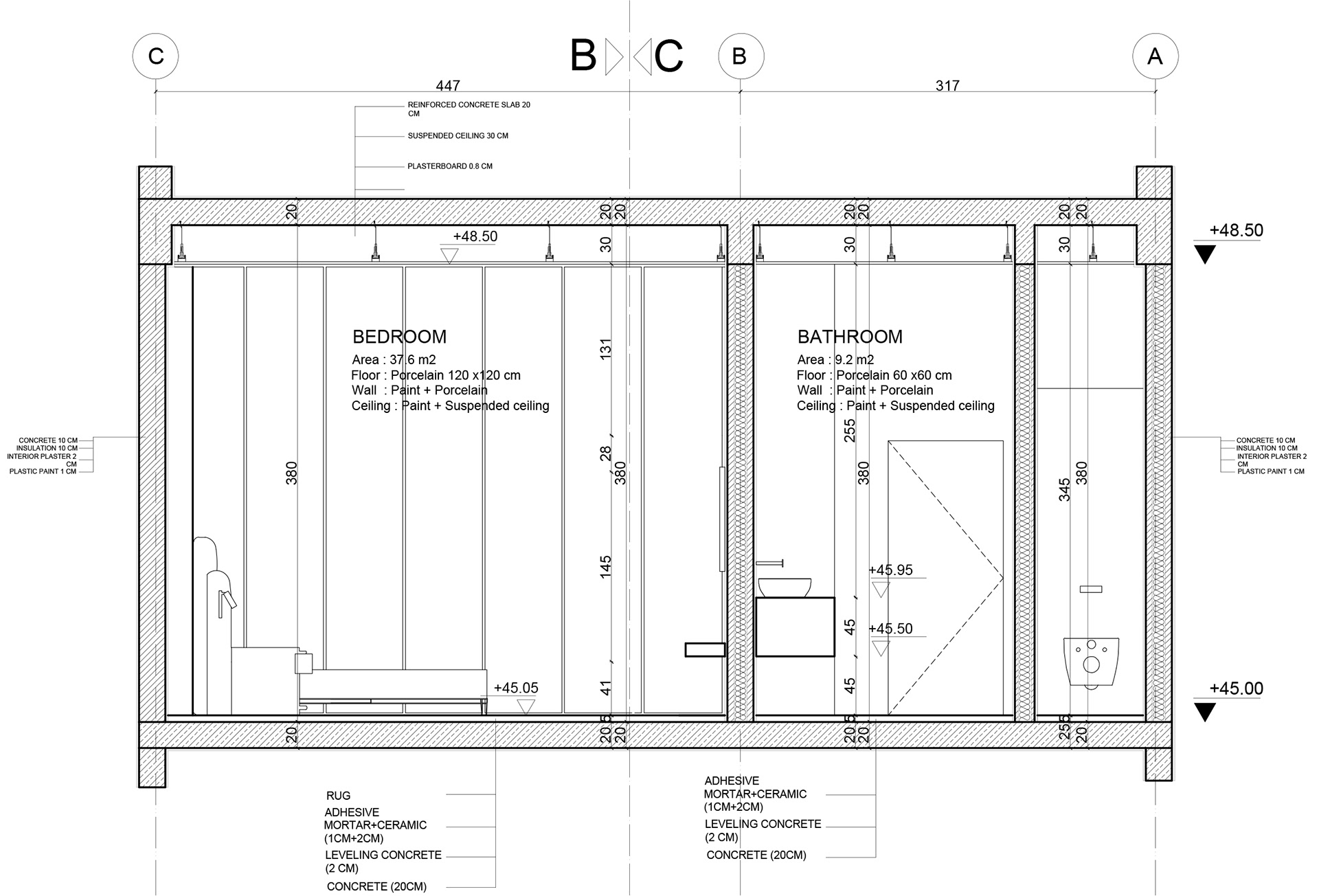
C-C Section

D-D Section

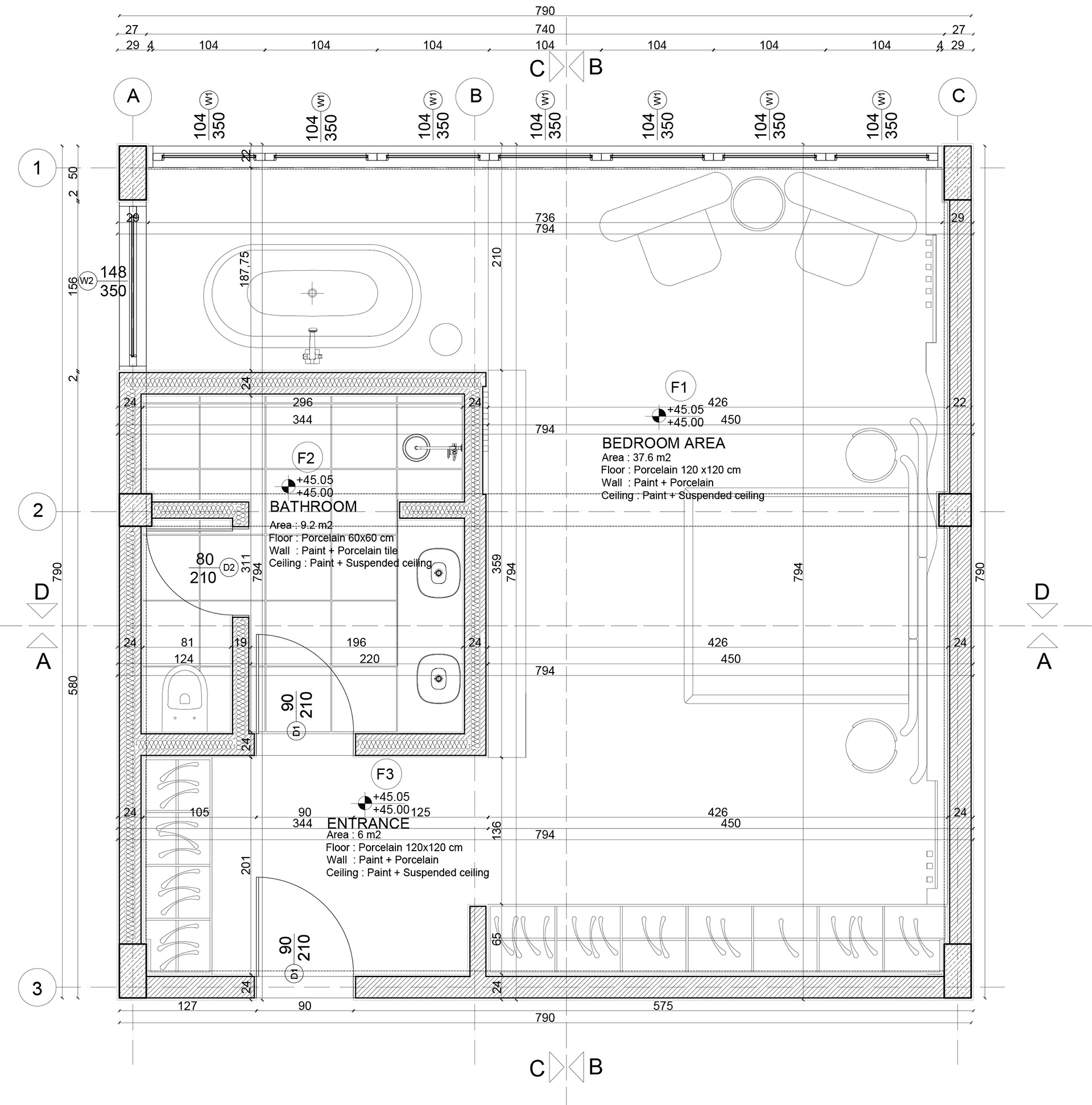
Hotel Room Detail Plan
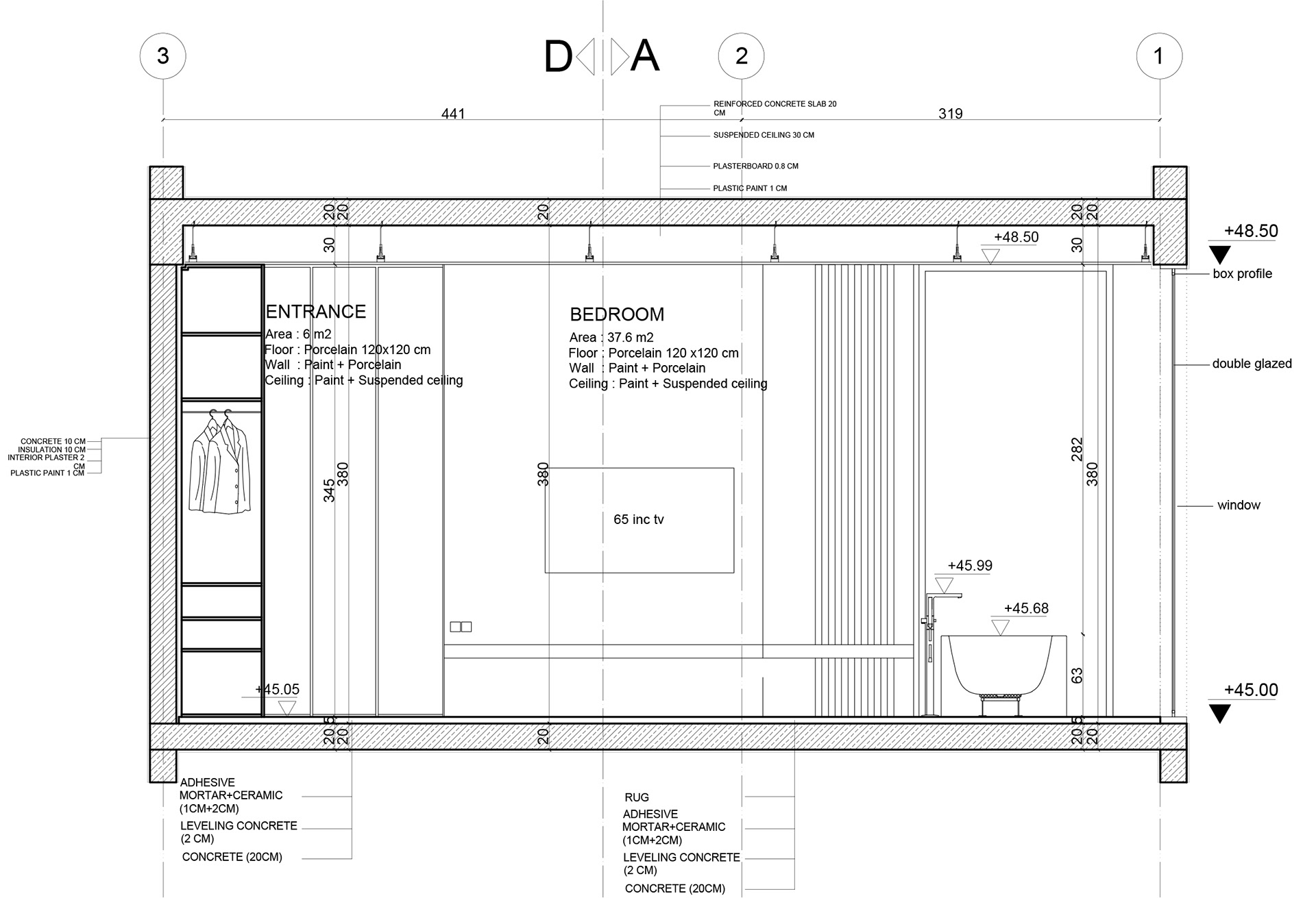
 A-A Section
Back to Top